LIXILリフォームショップ山二工業

お見積・ご相談・お問い合わせはこちら 0120-655-231

LIXILリフォームショップ山二工業

お見積・ご相談・お問い合わせはこちら 0120-655-231

K様邸2階増築工事

福井県 K様邸 2017年7月 3日

2階ベランダに小部屋を作りたいとのご相談を頂きました。

工期 50日
費用(税込) 300〜500万円
建物種別 戸建て
  • ベランダ・バルコニー
  • 収納
  • 家族の変化

ビフォー・アフター

その他、リフォーム空間

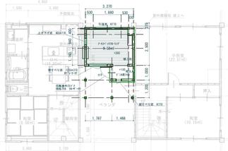
平面図

2階のベランダスペースに小部屋を作りました。

担当者コメント

LIXILリフォームショップ山二工業 店長 山田 育郎

既存の建物とのとり合いで非常に悩みました。お孫様の部屋を作りたいとのことで、増築の依頼を受けました。収納棚等、小さい部屋ですが、機能的にうまくまとまったと思います。

山二工業の施工事例一覧へ

お見積・ご相談・お問い合わせはこちら

お見積・ご相談・お問い合わせはこちら

0120-655-231