LIXILリフォームショップ山二工業

お見積・ご相談・お問い合わせはこちら 0120-655-231

LIXILリフォームショップ山二工業

お見積・ご相談・お問い合わせはこちら 0120-655-231

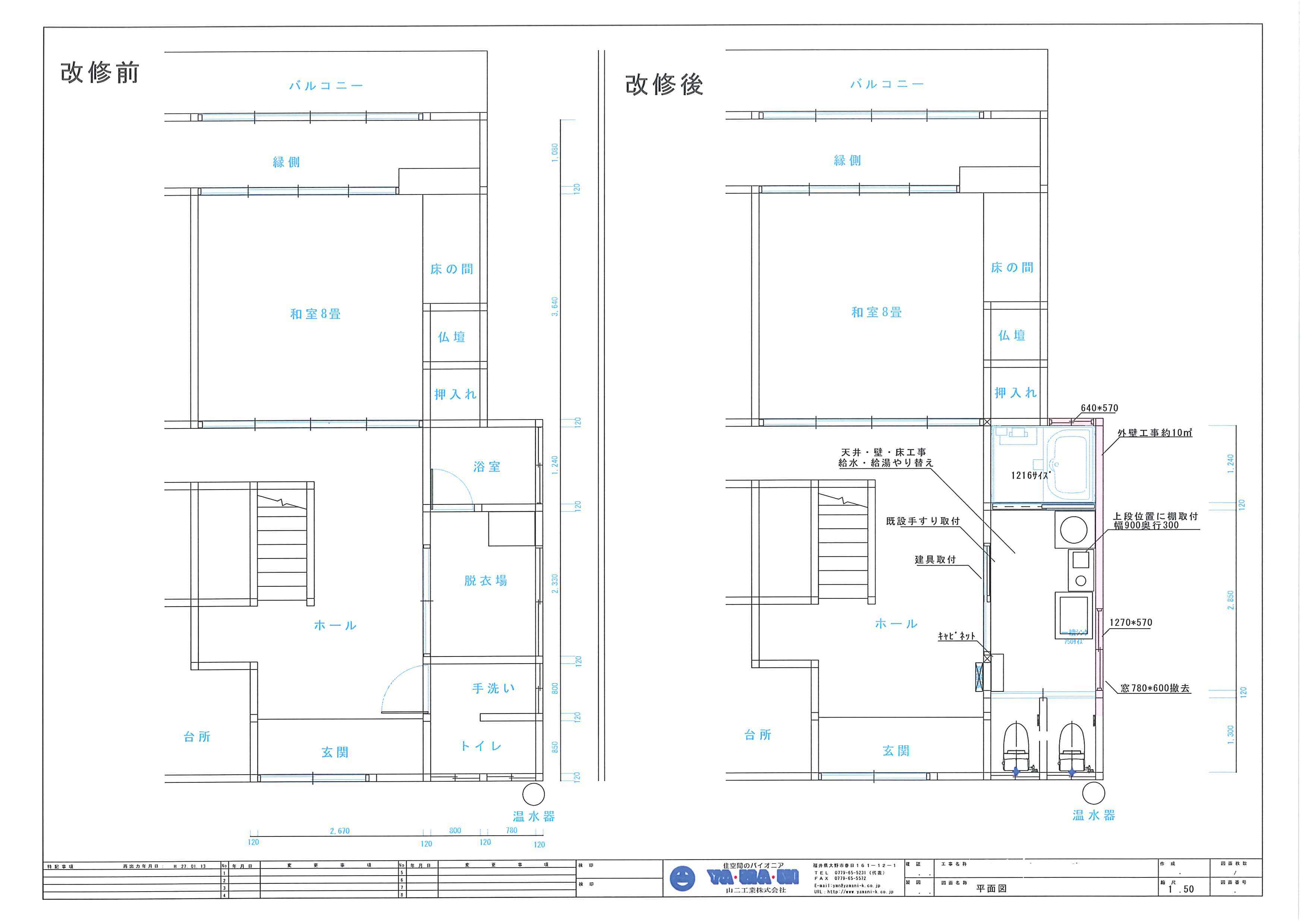
U様邸浴室・トイレ改修工事

福井県 U様邸 2015年1月13日

YA・MA・NI秋まつり(2014年9月6・7日)においで頂き、冬場のお風呂の寒さがずっと気になっていたとお話を頂きました。

リフォーム部位 浴室・洗面化粧室・トイレ
工期 20日
費用(税込) 100〜300万円
建物種別 戸建て
  • 浴室

ビフォー・アフター

その他、リフォーム空間

LIXIL キレイユ

施主様コメント

完成してまだ日が浅いので意見は申し上げられませんが良かったのではと感じています。

山二工業の施工事例一覧へ

お見積・ご相談・お問い合わせはこちら

お見積・ご相談・お問い合わせはこちら

0120-655-231