LIXILリフォームショップ山二工業

お見積・ご相談・お問い合わせはこちら 0120-655-231

LIXILリフォームショップ山二工業

お見積・ご相談・お問い合わせはこちら 0120-655-231

S様邸浴室改修及び屋根修繕工事

福井県 S様邸 2014年12月 5日

当初は屋根が傷んでいるので直してほしいと依頼があり、その後に浴室改修の話も頂きました。

工期 20日
費用(税込) 100〜300万円
建物種別 戸建て
  • 浴室

ビフォー・アフター

その他、リフォーム空間

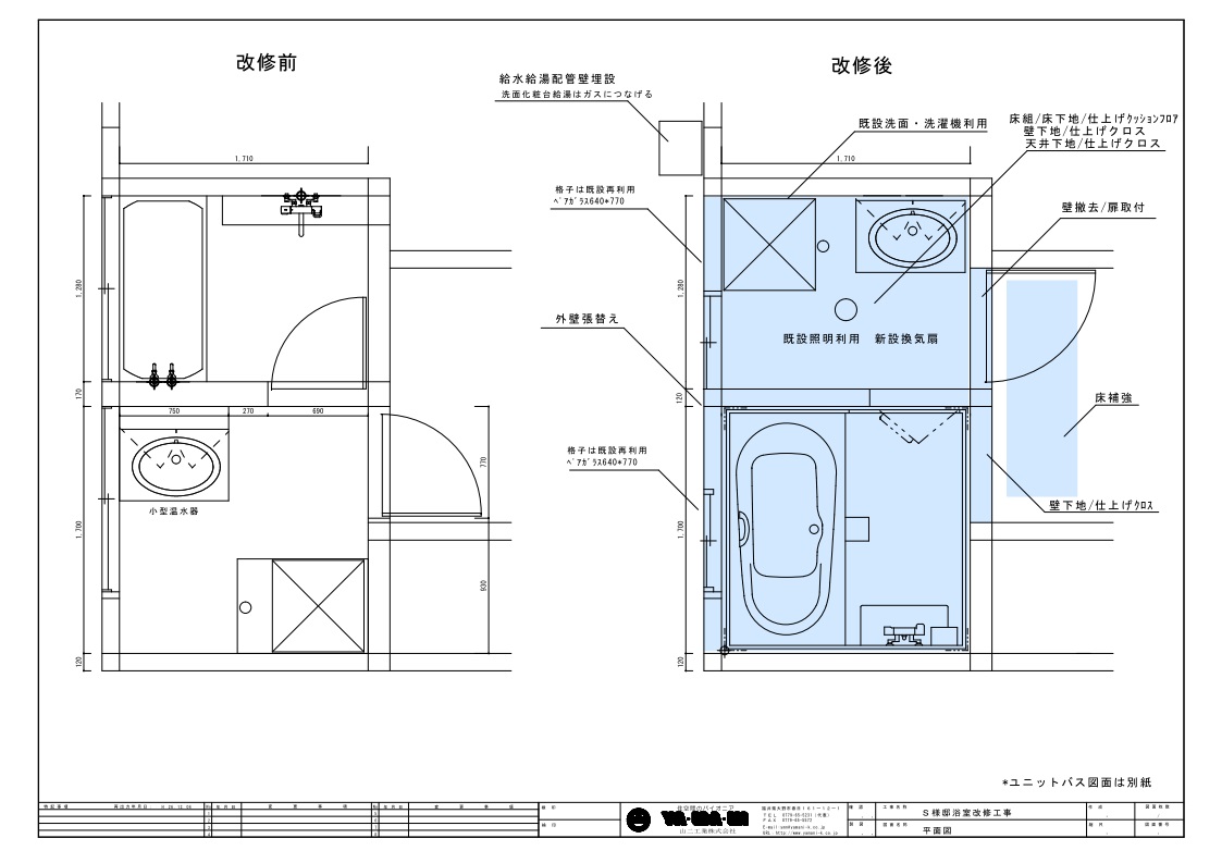
ユニットバス1616サイズ  LIXIL キレイユZシリーズ

間取りを変更して、浴室を広く取りました。

担当者コメント

LIXILリフォームショップ山二工業 営業 山川 雅史

当初は浴室が小さく、脱衣場は広い間取りで1216(0.75坪サイズ)しかユニットバスが入りませんでした。 場所を入れ替えて、浴室を広く取り1616(1坪サイズ)を入れたことにより、お客さまも大変満足されていました。

山二工業の施工事例一覧へ

お見積・ご相談・お問い合わせはこちら

お見積・ご相談・お問い合わせはこちら

0120-655-231