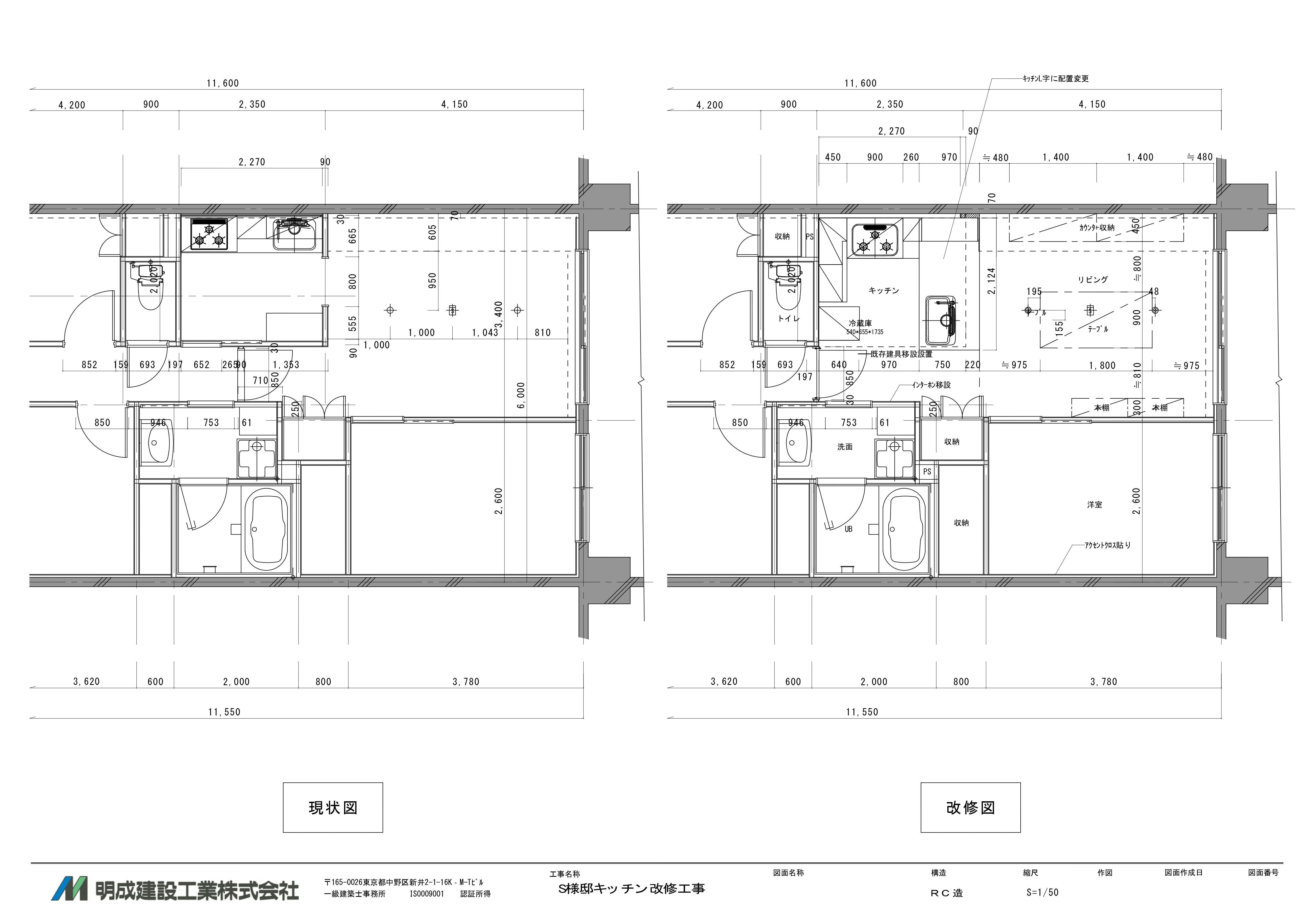
神奈川県 S様邸 2020年5月15日
独立キッチンをオープンキッチンへリフォーム致しました
キッチンスペースをより広く、より使い勝手がよいものをご提案させていただきました
照明は全体が明るくなるようダウンライトへ交換をしました
キッチンサイドの壁面にはLIXILのモザイクタイルをはり、清掃性を高めつつキッチンにアクセントをいれました
今回のキッチンリフォームにあたり、床材は既存材料がまだ廃盤になっていなかったので部分補修、洋室の壁紙張替えなどお客様のご要望やイメージに合わせてプランをご提案させていただきました
| 築年数 | 築15年 |
|---|---|
| 工期 | 1ヶ月 |
| 費用(税込) | 100〜300万円 |
| 建物種別 | マンション |

