神奈川県 横浜市港北区I様邸マンションリフォーム 2021年6月29日
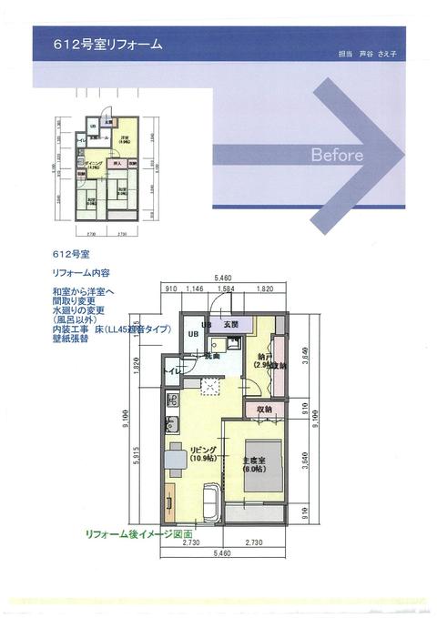
リフォーム前は洗面ボウルがトイレの入り口となり壁に設置してあり、脱衣スペースがしっかりと取れていない間取りでした。洗面台と洗濯機の置き場所が欲しいそれから入口に近い部屋が物置きスペースになってしまっていたので、収納を増やしてなるべくタンスなどを無くしてすっきりした間取りにしたいなどのご要望がございました。
リフォーム後はお施主様がとても満足してくださり、私達もとても嬉しく思っております。
| リフォーム部位 | 全面改修 |
|---|---|
| 面積 | 60平米 |
| 築年数 | 38年 |
| 工期 | 45日 |
| 費用(税込) | 300〜500万円 |
| 建物種別 | マンション |







担当者コメント
LIXILリフォームショップ三ッ輪産業 リフォームアドバイザー 須藤・芦谷
御施主様がご希望とされる間取りをお伺いし、細かな部分は、大工さんと私達でご提案させていただき、最終決定となりました。 様々な面で御施主様が協力してくださり、工事が進めやすかったです。感謝しております。 現場は常に楽しくより良くするには?を考えながら工事が進められましたので途中でエコカラットやダウンライトを増やすなどの追加もございました。