東京都 世田谷区 F様 2019年6月 6日
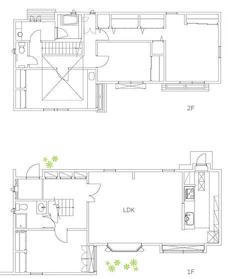
最初は吹き抜けのLDKを希望されていたF様。2×4でも可能ですが、天井を残して出窓を掃出し窓にする方が冷暖房効率がいいというご提案で、開放的な空間になりました。内装は オーク無垢材の床、ペイント仕上げの壁など自然素材にこだわりました。「子供たちが音を気にせずのびのびと遊べるようになったのが嬉しい、これからの庭づくりも楽しみです」と 笑顔で語り、ご希望の地域にお好みの住空間を得られて大変満足していただけました。
| 面積 | 138.6㎡(1階67.8㎡、2階70.8㎡) |
|---|---|
| 工期 | 45日 |
| 費用(税込) | 500〜1000万円 |
| 建物種別 | 戸建て |
| 家族構成 | ご夫婦+子供2人 |







