改装プラン
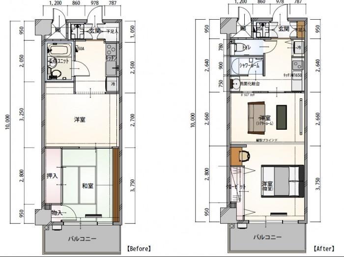
もともとは洋室と和室の2部屋ありましたが、2部屋をつなげて1つのワンルームに。1部屋はホームシアターとして、もう1部屋は寝室として使い分けできるように、中央に縦型ブラインドを設置して仕切れるようにしました。またマンションが電車の線路に面している為、防音対策として内窓も設置しました。
リフォーム後のトイレ
LIXIL リフォレI型手洗い付きにお取替え。全体的に明るいが落ち着いていてホテルのような雰囲気のデザインがご希望だったO様。内装全体は明るいものにし、設備(トイレや洗面化粧台)の面材はダークなお色で統一しました。
リフォーム後の洗面化粧台
LIXIL ルミシス ボウル一体タイプにお取替え。扉面材は落ち着いた木目の<クリエダーク>です。洗面化粧台の洋室側の壁にはガラスブロックを施工して、採光がとれるようにしました。
リフォーム後のキッチン
キッチンは最小限のものでOKだが、出っ張りがなくスッキリをしたレイアウトがご希望でした。キッチンはLIXIL TioW1200にお取替え。取っ手はシャープな印象に仕上げるラインデザイン。シルバーカラーがすっきりとした雰囲気を演出します。
リフォーム後のリビング入り口
建具も落ち着いたお色(クリエダーク)で統一しました。
リフォーム後の洋室
2部屋をつなげて大きなワンルームに。フローリングは朝日ウッドテックの<エアリスα>摩耗に強く、滑らかで美しい仕上がりの突き板カラーフロアです。お色はパールホワイトをお選び頂きました。部屋の中央部分にはニチベイの縦型ブラインド アルペジオフェスタⅡを施工しました。1部屋はホームシアターとして、もう1部屋は寝室として使い分けできるようになっています。