LIXILリフォームショップ明成建設工業 中野店

お見積・ご相談・お問い合わせはこちら 0120-234-099

LIXILリフォームショップ明成建設工業 中野店

お見積・ご相談・お問い合わせはこちら 0120-234-099

あこがれのホワイトインテリアに包まれた空間創り

東京都 新宿区 M様邸 2022年12月 8日

1戸建てをフルリノベーションして、自分の好みのインテリアにしたい。
ホワイトが大好きなので、家全体をを白い空間にしたい。
ゆとりのある、水回りで毎日をホテル暮らしのような空間にしたい。
夢をかなえるリノベーション。
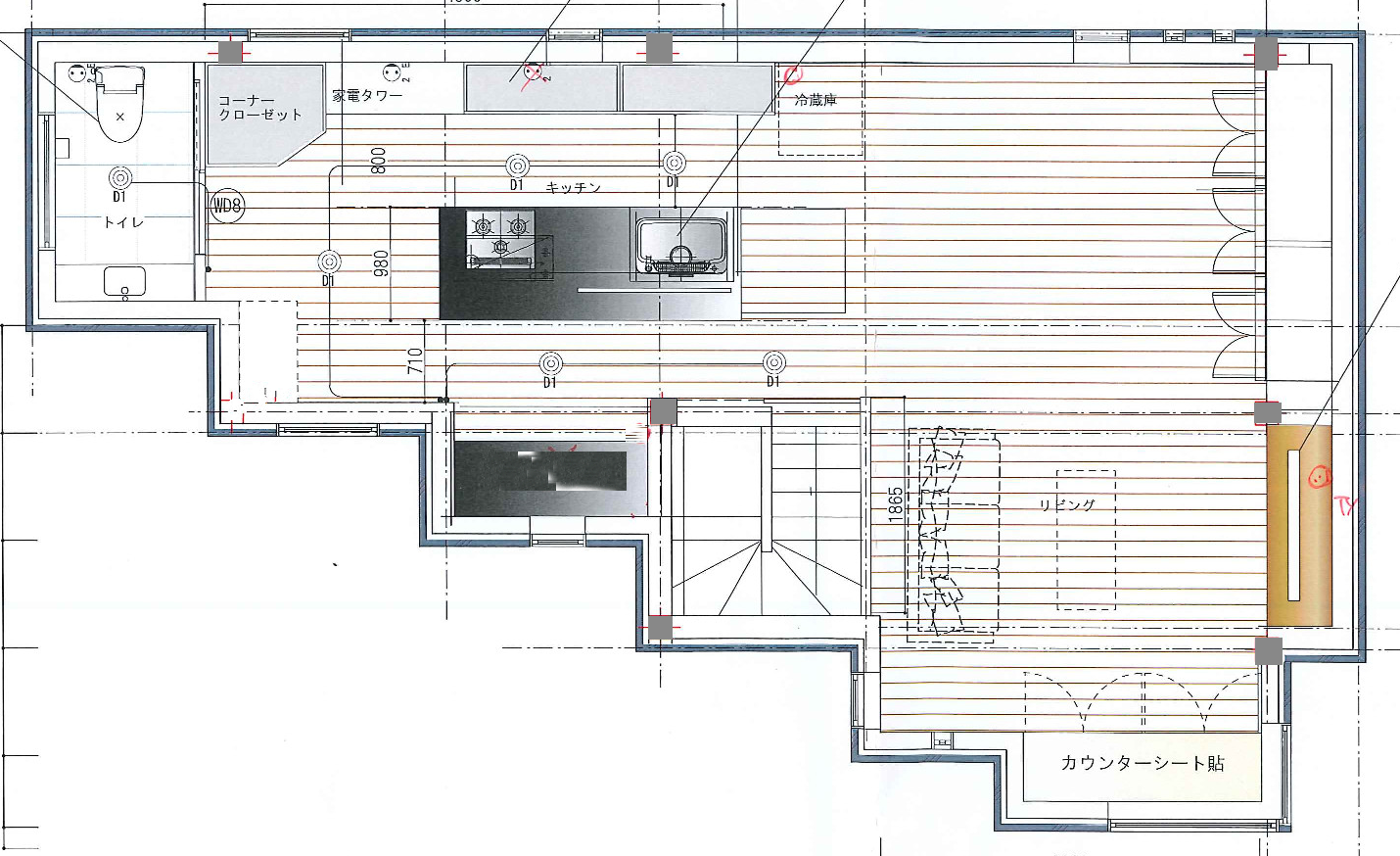
間取り図は3階のLDK部分です。

リフォーム部位 全面リノベーション
面積 140㎡
築年数 築20年
工期 2.5カ月
費用(税込) 1000万円〜
建物種別 戸建て
  • キッチン
  • 寝室
  • 浴室
  • 洗面化粧室
  • トイレ
  • 収納
  • デザインリフォーム
  • 趣味を楽しむ

ビフォー・アフター

その他、リフォーム空間

スパージュ1620size

タイルを贅沢に使ったユニットバス。肩湯で温泉気分も味わえます。

明成建設工業 中野店の施工事例一覧へ

お見積・ご相談・お問い合わせはこちら

お見積・ご相談・お問い合わせはこちら

0120-234-099