こんにちは。
猛暑にゲリラ豪雨、、地震もあったりなんだか落ち着かない今日ですが、
お身体に気をつけて夏を乗り切りましょう。
本日はちょこっと間取りチェンジリフォームのご紹介です。
リフォームって大々的に?
なんか大変そう?
今の生活で満足しているし・・・と考えている方へ
"リフォームは気になっているところだけを重点的にリメイクできる利点があります。"
新築や建て替えだと気なっていなかったところが気になることがあります。
気なっているところばかりに気が回り、意外とこんなところもかと感じることもあるので、
よく「家は3回建てないと理想の家にならない」と言われておりました。
ですが、そんな大きな買い物何度もできませんよね?
玄関の向き、階段・水廻りの位置など大々的に変更したいなど大規模な変更をご希望の場合は新築や建て替えが良いかと思います。
ところが、新築・建て替えは建築確認申請、長期の仮住まい・お引越し、解体費それに伴う廃材処理。基礎のやり替え、、、などなど時間も費用もかさみます。
マンションでもご希望の間取りはそうそうない、
そしたらリフォームで理想のものにするしかない!!
今回はちょこっと(結果大々的になってしまいましたが)部分ごとに間取りの変更をお見せします!
マンションリノベーション
"広々シューズインクロークをつくりたい"
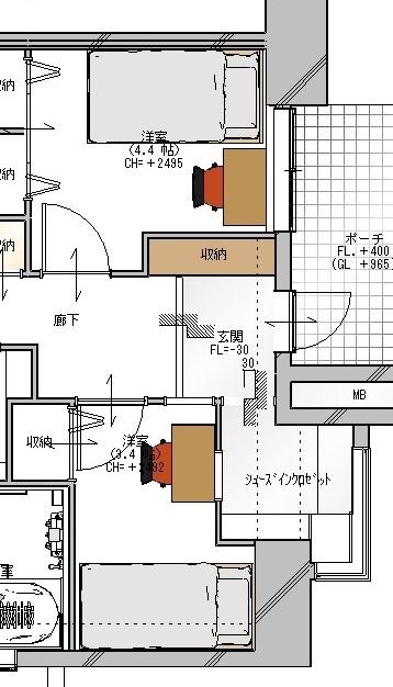
BEFORE
お客様のご要望
・玄関を広く取りたい
・シューズだけでなく子供のおもちゃや外回り用品を置きたい
そこでお部屋を分割してシューズインクロークを作るプラン、
こちらはいかがでしょうか。
とご提案させて頂きました。
After
プランのPOINT
・玄関脇に広々シューズインクローク
・お部屋の明るさ問題は室内窓を設置し、ワークスペースや寝るだけのお部屋に
なるとのことで収納を優先いたしました。
床は一段少し上がりますが、こちらで下の階への音問題も解消です!
"エコカラット"を壁に貼っているのでにおい・湿気問題も解決です!
ちょこっとお部屋のスペースを頂きまして、玄関収納もスッキリ!
ひろびろ玄関になりました!!
BEFORE
AFTER
今回はここまで
次回は水廻り空間のご案内をいたします。
過去ネタ スケルトンリノベーション はこちら
スタッフブログ | 明成建設工業 中野店|東京都|LIXILリフォームショップ (lixil-reformshop.jp)
一覧へ戻る