LIXILリフォームショップライファ羽田

お見積・ご相談・お問い合わせはこちら 03-3744-3831
LIXILリフォームショップライファ羽田
お見積・ご相談・お問い合わせはこちら 03-3744-3831

2世帯へ改修

東京都 T様邸 2017年3月24日

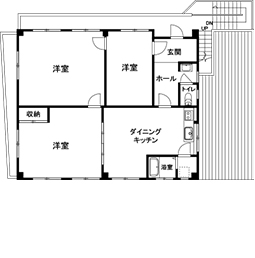
LIXILリフォームチェーン「わが家の物語」BS日テレ2014年8月25日vol.32で放送されました。足の悪いお祖母様が一人で暮らしていた家に、安全の為と息子さん夫婦が同居することを決め、ワンフロアに2世帯住宅を作ることになりました。まず世帯ごとのプライバシーが守れるように。そして巣立っていくお孫さんも視野にいれ、フレキシブルに間取りを変えられるようにしました。

リフォーム部位 全面改修
面積 100㎡
築年数 築30年
工期 約40日
費用(税込) 500〜1000万円
建物種別 戸建て
家族構成 祖母 父 母 息子 犬2匹
  • リビング・居室
  • 浴室
  • キッチン
  • 寝室
  • トイレ
  • 家族の変化
  • ペットと暮らす

ビフォー・アフター

その他、リフォーム空間

リビング ~フレキシブルに活用

壁を取り去って広くしたリビングは、TV台をパーティションにして、奥を夫婦の寝室にしています。大学生の長男が独立したら、長男の部屋を夫婦の寝室にと考えて、あえて独立した寝室を設置せず、フレキシブルに家族の変化に対応しています。

担当者コメント

LIXILリフォームショップライファ羽田 山東 久美子

お客様のご要望を、プロの視点で形にしていくのが、私たち施工店の役目。 とはいえ、プロの視点だけで考えていては、本当に住みやすい家はできません。 そこで、役に立つのが、今までに担当したお客様の声です。過去の実例を踏まえて、より実生活に合ったご提案を心がけています。また、ご提案の際には、同じ建材でも価格や機能が異なるため、「B案はA案より、5万円安いです。その代わりこの機能が省かれます」と、納得の上で選んでいただけるようにご説明するのも、私たちの務め。 知らないとわからないことも多いもの。家のことならどんなことでもご相談いただければ、予算とともにプランをご提案いたします。

施主様コメント

3年前に足を悪くして以来、一人で暮らす母の生活を不安に思っていて、同居に踏み切りました。二世帯住宅とはいえワンフロアの家なので、生活を完全に分けることは不可能。そこで、玄関やお風呂、トイレを共用にした上で、プライバシーが守られる間取りにしました。長男が独立することを考えて、あえて作り付けの収納を設けず、フレキシブルに変化できるようにしています。私たち家族がいつも近くにいるようになって、母は「心強い」と感じてくれているようです。2匹の犬がいるので、私たちにとっても、いつも母がいてくれると助かるもの。みんなが安心して暮らせる、いいリフォームになったと思います。

ライファ羽田の施工事例一覧へ

お見積・ご相談・お問い合わせはこちら

お見積・ご相談・お問い合わせはこちら

03-3744-3831