我が家にピッタリの家具ができて良かったです。ありがとうございました。
栃木県 大田原市 A様邸 2022年11月20日
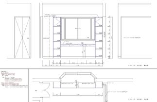
既製品の家具が壊れたので収納が欲しいとご相談があり、お客様と打合せしながら造作家具を製作しました。
窓からの景色を眺めながらパソコンや読書など趣味を楽しめるカウンターデスクと、収納棚を組み合わせました。
| リフォーム部位 | 造り付家具 |
|---|---|
| 工期 | 製作1ヶ月程度 取付1日 |
| 費用(税込) | 〜100万円 |
| 建物種別 | 戸建て |

我が家にピッタリの家具ができて良かったです。ありがとうございました。
担当者コメント
LIXILリフォームショップ七浦建設 古賀 憲一郎
お客様にヒヤリングしながら図面を起こしていきました。 製作時間は工場での塗装工程があるため結構待たされる感はあります。 しかし、色も形も打合せ通り完成すると、お客様だけでなく私も満足できました。